Space Landscape Designs create commercial landscape design Sydney for developers, schools, retail and commercial businesses, public areas and unit blocks / apartment buildings which enhance the property.
Whether you’re a developer, architect or owner looking for a landscape plan for Council DA submission or an upgrade to an existing property we can create the right landscape design to suite the site and budget.
Our commercial landscape design Sydney range from:
Apartment and Unit Blocks
A quality landscape / planting design can certainly enhance a new development. Working within your design brief we can create a master plan for all the landscaped areas around the building and roof top / balcony gardens. This can be for communal areas and spaces within the individual units.
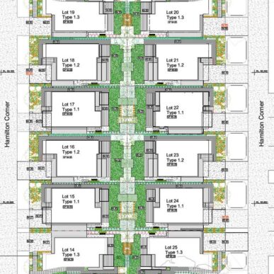
Residential developments
We create master landscape plans for new area subdivisions. This can be everything from street trees, communal park areas and working with the landscaping for the individual blocks / lots.
Day care or Child Care Centres
It’s important that the right type of landscape plan is created for a Child Care centre. Our designs include everything from specific plant selection for play areas, soft fall spaces, shaded areas, play equipment and areas outside of the centre.
Schools
Space Landscape Designs has a long history of creating landscape and planting plans for private and public schools throughout Sydney and the country areas. Our landscape designs complement the architectural improvements of Schools facilities throughout New South Wales.
Commercial Industrial and Factories
Development applications for new commercial industrial areas or even major upgrades require a landscape / planting plan for the DA submission. We create landscape plans for private or Government Commercial Industrial and Factories throughout Sydney.
Shopping centres and Retail Developments
Our landscape design works for Shopping and Retail Developments mainly consist around the facility. Whether it is an upgrade or redevelopment the landscape is important to help soften the facades of the buildings while adding shade to open car parking areas.
Universities & Colleges
Further education facilities such as universities and colleges are constantly changing. We create landscaped areas around the campuses that includes, seating / communal areas, open spaces, recreational areas and parking areas.
Through careful planning and design a welcoming front entry can, draw in clients or residents to your property. Commercial landscape design principles are applied on a master plan scale to ensure all areas of the site flow into each other and the site can be navigated clearly, in an aesthetic setting.
Our commercial landscape design Sydney plans have been created internationally, throughout Australia and in Sydney including the Eastern Suburbs, Northern Beaches, Northern Suburbs, Lower North Shore, Upper North Shore and the Inner City.















